Добро пожаловать на http://vipplan.ru

Випплан Элиста - это тысячи проектов домов в нашем каталоге!

Вы всегда сможете найти для себя проект дома вашей мечты! Даже если этого не случилось, мы готовы в любую минуту предложить проект индивидуального дома.

Забыли пароль?
Вы еще не регистрировались?

Перейдите по ссылке ниже на страницу регистрации.

Регистрация...

Внимание!!!

В проектную документацию могут быть внесены изменения любой сложности, в соответствии в Вашими пожеланиями!

Полезные статьи

Газобетонные перекрытия

Перекрытия из газобетонных плит, устанавливаются без применения подъемников и кранов. Строители устанавливают прочные и, что немаловажно, легкие газоблоки без помощи техники. Ячеистый бетон (пенобетон и газобетон) нашел широкое применение в домах из пенобетона и газобетона в Элисте...

Уклон кровли дома

Чтобы вода быстрее уходила с кровли Вашего дома, скатам необходимо придать уклон, который выражающийся в процентах или градусах и измеряющийся геодезическими инструментами. Уклон кровли обозначает угол наклона ската к горизонту. Чем больше уклон, тем круче крыша. У новомодных зданий наклон кровли делают не очень большим....

Проекты домов и коттеджей > Каталог проектов домов > Уютный одноэтажный коттедж с мансардой Vg1190

Уютный одноэтажный коттедж с мансардой Vg1190

Уютный одноэтажный коттедж с мансардой
Зарегистрируйтесь

Проект № Vg1190


Техническое описание
Общая площадь: 351.4 м2
Жилая площадь: 134.3 м2
Высота здания: 11.15 м
Размеры дома: 21.46м×14.84м
Кол-во комнат: 7
Цокольный этаж: нет
Гараж: нет
Мансарда: есть

Kонструкция
Фундамент: Монолитная ж/б плита
Перекрытия: Сборные ж/б плиты
Материал стен: Керамоблок

Архитектурный раздел
Конструктивный раздел
АР+КР - 92 000 (Со скидкой 20%)
Проект индивидуального одноэтажного жилого дома с мансардой с размерами здания 21,46 x 14,84м. Стены - фасадная штукатурка. Цоколь - отделка камнем. Фундамент - монолитная ж/б плита (под всей площадью дома). Наружные стены дома: KERAKAM, отделка фасадной штукатуркой. Внутренние стены: - KERAKAM. Перегородки: кирпич забутовочный. Пол первого этажа - пол по плите. Пол мансардного этажа - сборные ж/б плиты перекрытия. Потолок мансардного этажа - по затяжкам стропильной системы. Отделка вентканалов и дымоходов - штукатурка. Крыша многоскатная. Покрытие - гибкая черепица. Окна - металлопластиковые, выполненные по индивидуальному заказу. Лестница - деревянная, выполняется по индивидуальному заказу.
Генплан застройки участка / Паспорт проекта 7000 руб / 10000 руб
Инженерный раздел (полный) 175500 руб
Смета на строительство 87750 руб
Теплотехнический расчет материалов стен Бесплатно
Стоимость проекта со незначительнми изменениями 106200 руб
Стоимость проекта со средними изменениями* 132600 руб
Стоимость проекта со значительными изменениями** 139600 руб

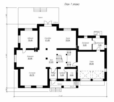
План первого этажа


Тамбур — 4,29 м2
Холл — 21,83 м2
Столовая — 21,85 м2
Кухня — 18,54 м2
Гостиная — 26,79 м2
Каминная — 20,96 м2
Кабинет — 16,46 м2
Гардероб — 5,28 м2
С/у — 4,64 м2
Бойлерная — 9,00 м2
Тех/помещение — 7,84 м2
Гараж — 39,55 м2
Терраса — 37,29 м2

План мансардного этажа


Холл — 18,18 м2
Гардероб — 14,33 м2
Спальня — 22,26 м2
С/у — 17,04 м2
Спальня — 26,97 м2
Спальня — 26,55 м2
С/у — 17,74 м2
Гардероб — 11,34 м2
Гардероб — 11,34 м2
Уютный одноэтажный коттедж с мансардой Уютный одноэтажный коттедж с мансардой Уютный одноэтажный коттедж с мансардой Уютный одноэтажный коттедж с мансардой

Модификации проектов

Внесение изменений и привязка к участку строительства

В любой из проектов от компании VIPplan - Элиста по вашему желанию могут быть внесены изменения в материалы стен, материалы наружной отделки дома, а также будет произведена адаптация проекта под конкретный регион строительства (с учетом грунтов региона, геологических особенностей вашего участка и местных климатических условий) - БЕСПЛАТНО !!! (кроме проектов со скидкой и проектов наших партнеров).

Любой из проектов, размещенных на сайте elista.vipplan.ru мы можем выполнить из требуемых вам строительных материалов: ячеистый бетон (газобетон, пеноблок), керамоблок, кирпич, шлакоблок, бетонный блок, дерево (брус, клееный брус), каркасная технология (деревянный каркас, металлокаркас (ЛСТК)).

Фасад дома и его наружную отделку так же возможно выполнить с применением различных облицовочных материалов: структурной штукатурки, (с утеплителем и без), сайдингом (пластиковый или металлосайдинг), фиброплитами, кирпича.

 
6 Избранные
проекты

Доставка проектов по России: Москва (Московская область), Санкт-Петербург (Ленинградская область), Краснодар, Ростов-на-Дону, Ставрополь, Сочи, Волгоград, Новосибирск, Белгород, Брянск, Воронеж, Саратов, Хабаровск, Астрахань, Нальчик, Владикавказ, Екатеринбург, Тюмень, Самара, Нижний Новгород, Казань, Пермь, Уфа, Челябинск, Красноярск, Ханты-Мансийск, Иркутск, Курган, Оренбург, Омск, Томск, Барнаул, Новокузнецк, Кемерово, Абакан, Чита, Якутск, Южно-Сахалинск, Петропавловск-Камчатский и страны ближнего зарубежья: Белоруссия, Украина, Казахстан